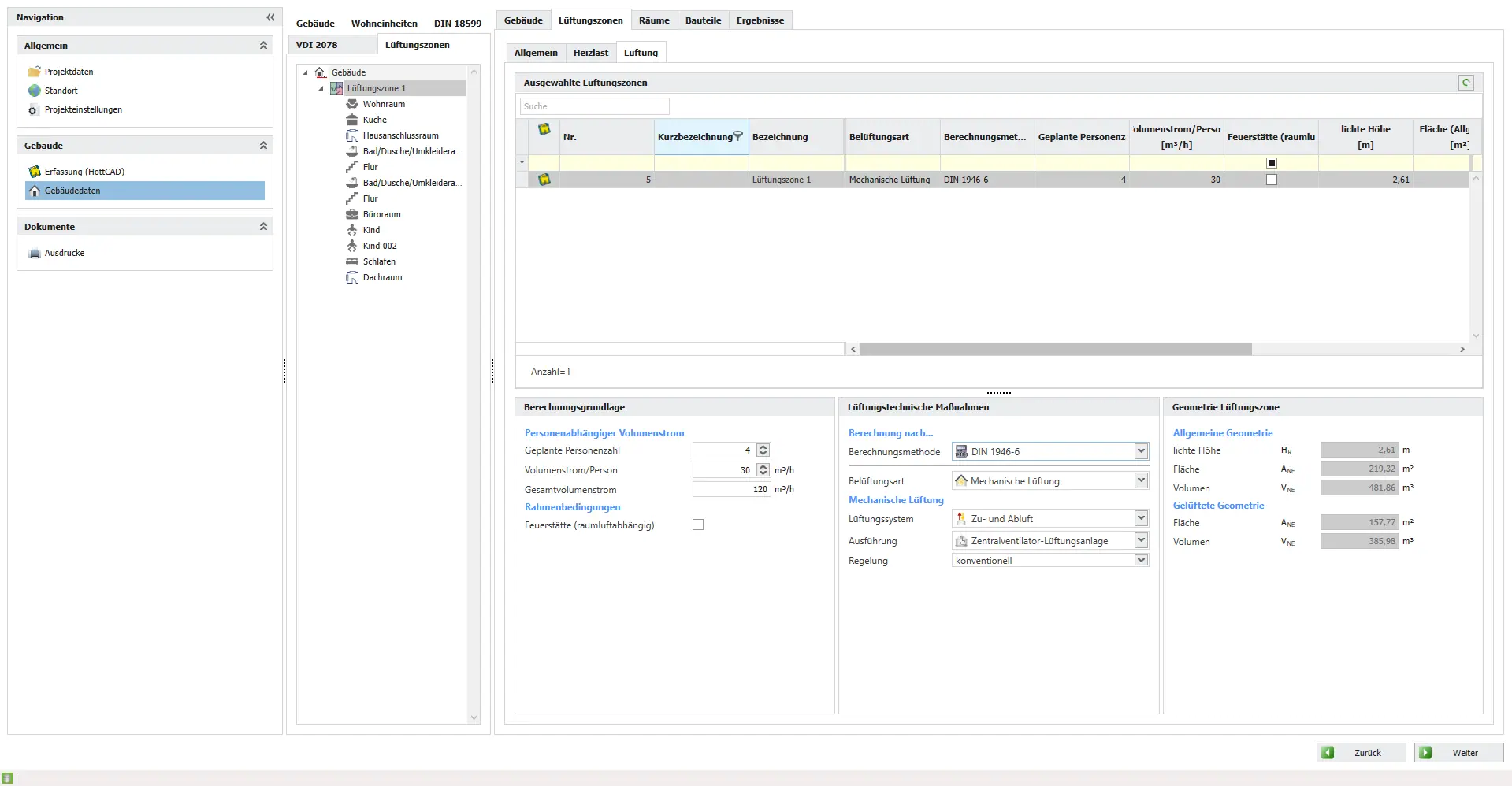
Tabellarische Erfassung der Lüftungszonen, Räume und Anlagenparameter
Schnellerfassungsassistent zur zeitsparenden Projektbearbeitung
Feststellung der Notwendigkeit einer lüftungstechnischen Maßnahme nach DIN 1946-6
Berechnung mehrerer Wohneinheiten innerhalb eines Projekts
Berechnung der notwendigen Luftvolumenströme für freie und mechanische Lüftungssysteme
Detaillierte Berechnung nach DIN 1946-6 für Wohngebäude inklusive Berücksichtigung der Volumenströme für innenliegende Bäder nach DIN 18017-3
Ausgabe der Ergebnisse in übersichtlichen Tabellen und Protokollen für Dokumentation, Nachweis und Förderanträge
Optionale Herstellerdaten zur direkten Anlagenauslegung (mit Pflege-/Nutzungsvertrag)
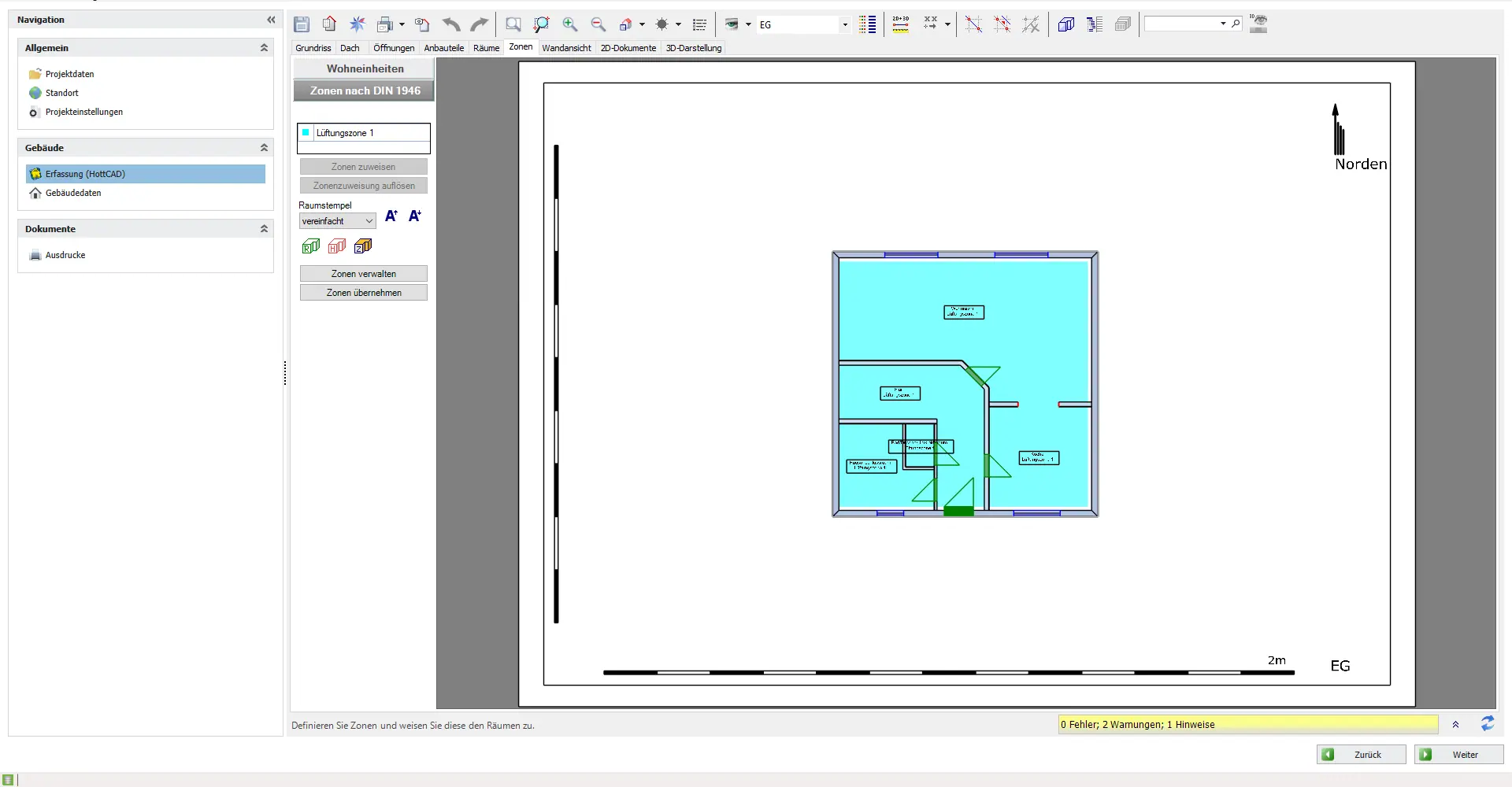
Das integrierte HottCAD ermöglicht eine präzise Gebäudeerfassung und direkte Verknüpfung der Lüftungsplanung mit dem Gebäudemodell.
Schnelle Erfassung mithilfe diverser Assistenten und intuitiver Bedienung
Erweiterung der Gebäudedaten um Materialeigenschaften, Raumdefinitionen und Zonenbildung
3D-Modellansicht für die visuelle Kontrolle des Gebäudes
Bidirektionale Verbindung zum Gebäudemodul mit tabellarischer Hüllflächenerfassung
Datenaustausch mit anderen Hottgenroth-Anwendungen – etwa GEG-Berater, ETU-Planer oder Optimus
Verlege- und Grundrissdarstellung für eine anschauliche Dokumentation
Normkonforme Planung nach DIN 1946-6 und DIN 18017-3
Automatische Prüfung, ob eine lüftungstechnische Maßnahme erforderlich ist
Schnelle Erfassung durch intelligente Assistenten
Mehrfamilienhaus-fähig – mehrere Wohneinheiten in einem Projekt
Grafische und tabellarische Ergebnisdarstellung
Inklusive 3D-Modell-Integration über HottCAD
Mit Optimus steht Ihnen eine praxisorientierte Software für den hydraulischen ...
699,00 €
zzgl. gesetzl. MwSt
Energetische Inspektion von Lüftungs- und Kälteanlagen nach GEG Abschnitt ...
499,00 €
Zusatzmodul zu den technischen Modulen aus den Bereichen Heizung/Klima/Sanitär ...
49,00 €
Notwendige Cookies helfen dabei, eine Webseite nutzbar zu machen, indem sie Grundfunktionen wie Seitennavigation und Zugriff auf sichere Bereiche der Webseite ermöglichen. Die Webseite kann ohne diese Cookies nicht richtig funktionieren. Diese Cookies werden nur lokal auf Ihrem PC gespeichert.
Marketing-Cookies werden verwendet, um Besuchern auf Webseiten zu folgen. Die Absicht ist, Anzeigen zu zeigen, die relevant und ansprechend für den einzelnen Benutzer sind und daher wertvoller für Publisher und werbetreibende Drittparteien sind.
Wenn Sie unsere Beiträge auf LinkedIn liken, kommentieren, teilen oder versenden wollen, wird über das Plugin eine direkte Verbindung zwischen Ihrem Browser und dem LinkedIn-Server hergestellt. LinkedIn erhält dadurch die Information, dass Sie mit Ihrer IP-Adresse unsere Seite besucht haben. Wenn Sie den "Like-Button" anklicken, während Sie in Ihrem Account eingeloggt sind, können Sie die Inhalte unserer Seiten auf Ihrem LinkedIn-Profil verlinken. Dadurch kann LinkedIn den Besuch unserer Seiten Ihrem Benutzerkonto zuordnen.
Auch Google Analytics verwendet "Cookies", Textdateien, die auf dem Computer des Seitenbesuchers gespeichert werden und die eine Analyse der Benutzung der Website durch den Seitenbesucher ermöglichen. Die durch das Cookie erzeugten Informationen über die Benutzung dieser Website durch den Seitenbesucher (einschließlich der gekürzten IP-Adresse) werden an einen Server von Google übertragen und dort gespeichert.
Mehr Informationen finden Sie in unserer Datenschutzerklärung
Bitte aktivieren Sie JavaScript in Ihrem Browser, um den vollen Funktionsumfang unserer Seite nutzen zu können